Обяви За нас Контакти
Продава ПАРЦЕЛ
град София, с. Волуяк
104 800 €
204 970.98 лв.

(168 €, 328.58 лв./m2)
Не се начислява ДДС
История на цената
Коригирана в 16:21 на 23 октомври, 2025 год.
Обявата е посетена 2667 пъти.
Площ:
622 m2
Регулация:
ДА
Вода:
ДА

Описание на имота:


TRENDIMO продава екслузивно парцел в регулация в с. Волуяк.

Продава се урегулиран поземлен имот с площ от 622 кв.м., разположен на асфалтов път в с. Волуяк. Парцелът е равен, без денивелация, с лесен достъп и в близост до автобусна спирка, училище и детска градина.

В регулация, вода в имота.

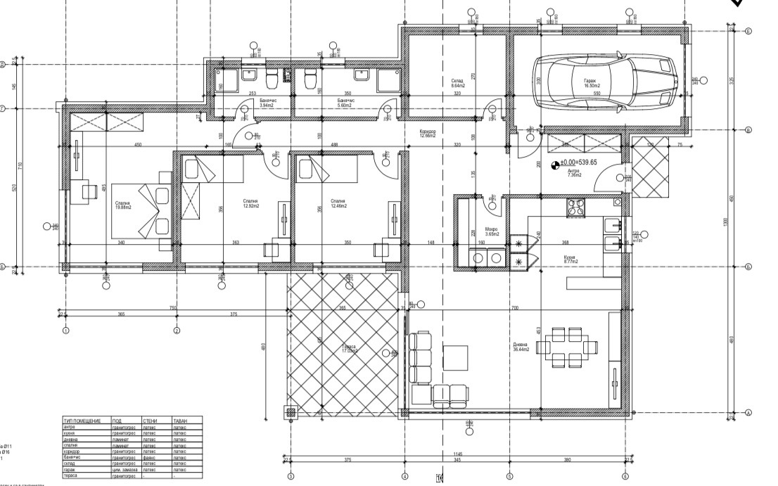
Разполагаме с проект за едноетажна къща и подадени документи за разрешение за строеж

Параметри на застрояване (Устройствена зона ЖМ):
Плътност: 40%
Кинт: 1,3
Кота корниз: 10 м

Имотът е подходящ както за строителство на еднофамилна къща, така и за инвестиция. Отлична локация с бърз достъп до София. Всички налични документи за сделка, за повече информация и оглед: Николай Шопов 0888 396 306
Виж всички обяви в trendimo.bazar.bg или тук
Особености
Виза
За жил.строителство
За контакт:
0888396306
Брокер:
Николай Шопов
0888396306
Офис: Централен офис - TRENDIMO
Още оферти от брокера: Продава | Дава под наем | Купува | Наема
Агенция:
ТРЕНДИМО ООД
0888396306
ТРЕНДИМО ООД logo
Медал за прослужено време
В imot.bg от 2006 г.
trendimo.imot.bg
Адрес:
област София, гр. София, бул.Васил Левски 14
http://www.trendimo.bg
ИЗПРАТИ ЗАПИТВАНЕ
ИЗПРАТИ ЗАПИТВАНЕТО

Продава ПАРЦЕЛ
град София, с. Волуяк
Обява: 1r175691255183361

104 800 €
204 970.98 лв.
История на цената
(168 €, 328.58 лв./m2)

Не се начислява ДДС
ЗАПАЗИ ОБЯВАТА

Местоположение: град София, с. Волуяк

Допълнителни данни за имотите в района и сравнение с други райони: Търсене в АРХИВ 2013 - 2025 г.











Добави/редактирай
вид имот и район
*Средните цени са определени чрез медиана стойност.